SIÓFOK, ARANYPARTON ELADÓ ÚJ ÉPÍTÉSŰ IKERHÁZ!!!
- 209 000 000 Ft
- 209 000 000 Ft
Leírás
Az Update Vip Ingatlaniroda kínálatából:
Eladó Siófok Aranypart területén egy impozáns családi ház/ikerház, amely a modern életstílus minden kényelmét kínálja.
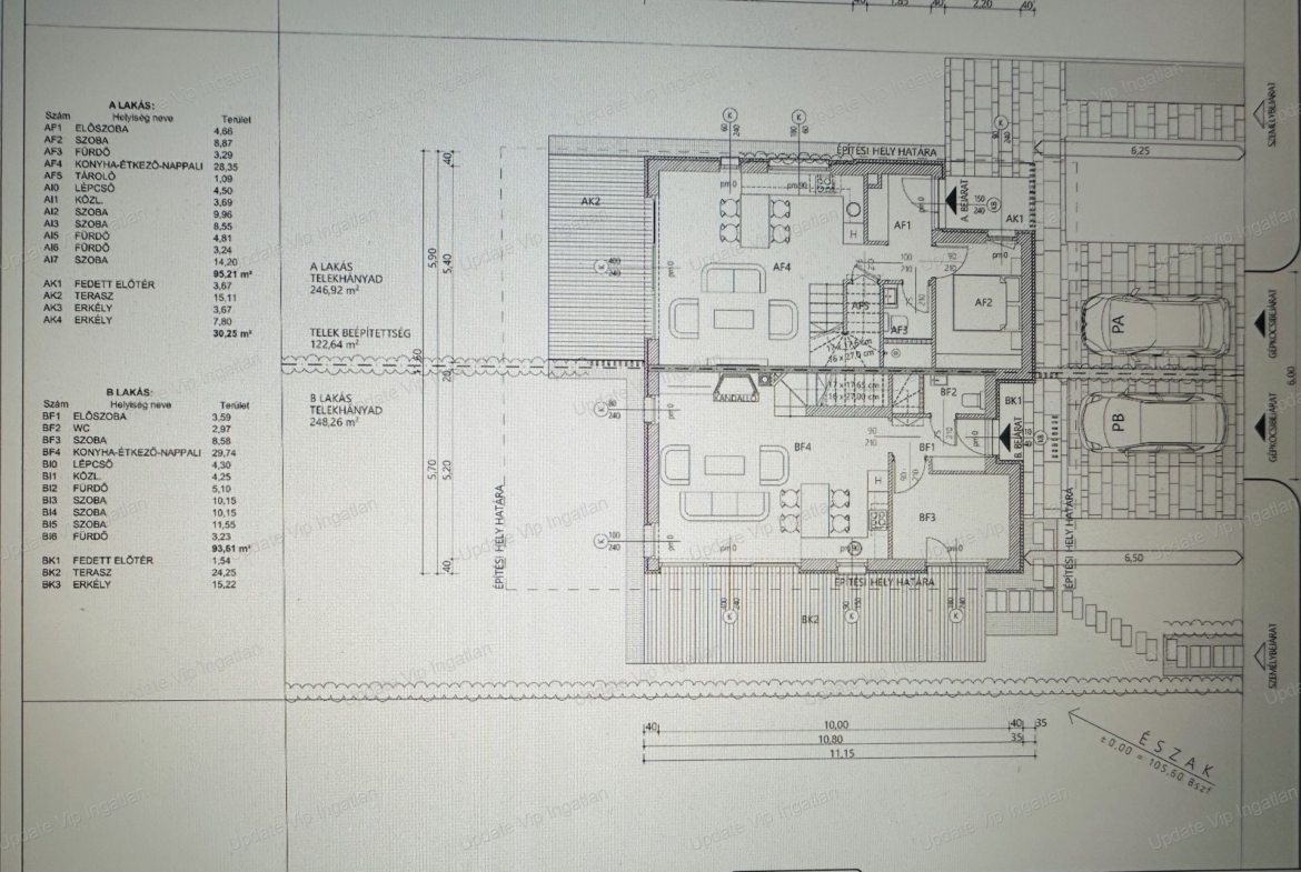
Az alapterülete 95 m2+ 30m2 teraszok, míg a telek mérete 300 m2, amely elegendő helyet biztosít a családi összejövetelekhez és a pihenéshez.
A ház belső elrendezése négy szobát foglal magában, amelyek ideálisak a családi élethez. A dupla komfortos kialakításnak köszönhetően a mindennapi élet minden igényét kielégíti.
Fűtését hőszivattyú biztosítja, a padlófűtés pedig még kellemesebbé teszi a téli hónapokat. A központi klíma gondoskodik arról, hogy a forró nyári napokon is kellemes hőmérséklet uralkodjon az otthonában. Az ingatlan udvari kilátással rendelkezik, ami biztosítja a csendes és nyugodt környezetet.
a BALATON 50m-re van a háztól.
Az ingatlan teljesen külön helyrajzi számon van a szomszédtól.
2 egységes lakóház a megnevezése.
A telken 6db ikerház épül amelyet egyszerre építi a tulajdonos.
Amennyiben megvásárolja kb 2 hónap alatt befejezésre kerül.
A parkolás az udvaron megoldott, így a járművek biztonságban helyezhetők el. Az épület északnyugati tájolása kellemes fényviszonyokat biztosít a lakótérben.
Az irányár 219 000 000 Ft, ami egy kiváló lehetőséget kínál a Siófok Aranyparti ingatlanpiacon.
Ne hagyja ki ezt a különleges ajánlatot!
Részletek
-
Ár 209 000 000 Ft
-
Alapterület 110 m²
-
Telekterület 300 m²
-
Szoba 4
-
Fürdőszoba 2
-
Garázs Udvarban
-
Ingatlantípus Családi ház
-
Értékesítés típusa Eladó
Hitel Kalkulátor
-
Önrész
-
Kölcsön összege
-
Havi jelzáloghitel fizetés









