SIÓFOK ARANYPART EGYIK LEGPATINÁSABB UTCÁJÁBAN, TÖBB LAKRÉSZES, LAKÓ INGATLAN MINŐSÍTÉSŰ EXKLÚZÍV INGATLAN, NÉHÁNY LÉPÉSRE A BALATONTÓL ELADÓ!
- 549 000 000 Ft
- 549 000 000 Ft
Leírás
Az Update Vip Ingatlan iroda kínálatában: Kifinomult elegancia a Balaton partján!
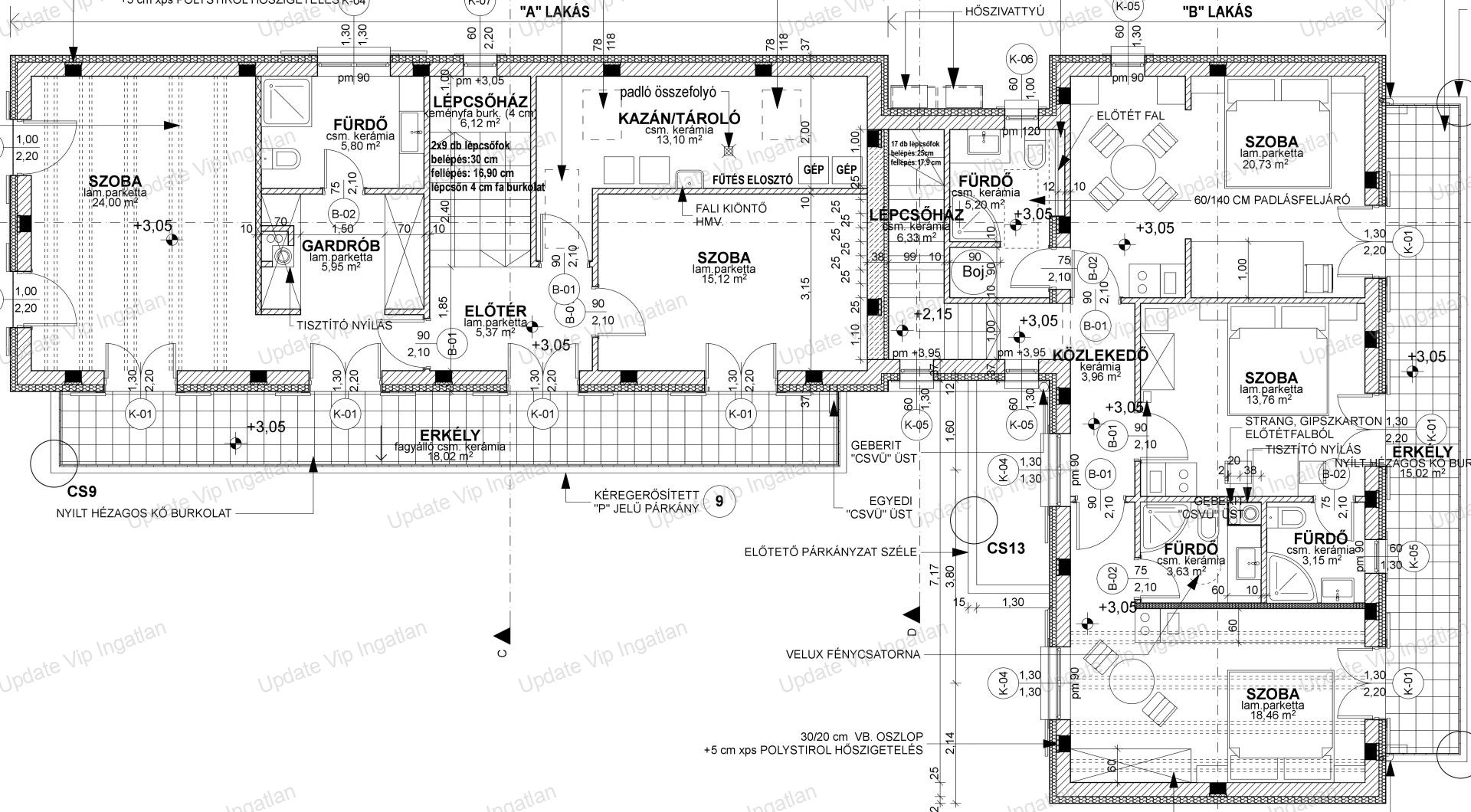
Ha Ön egy igazán különleges otthont keres, amely egyszerre kínál nyugalmat, exkluzivitást és a tóparti életstílus minden örömét, ne keressen tovább! Ez a két szintes luxusingatlan Siófok Aranypartjának egyik leghangulatosabb, fás-ligetes utcájában található – mindössze néhány lépésre a Balatontól.
Mi teszi igazán különlegessé ezt az ingatlant?
Élhető, többfunkciós kialakítás – A villa több, önálló lakrészre tagolódik, így tökéletes többgenerációs családok számára, vagy akár vendégfogadásra, apartmanhasznosításra.
Modern technológia – A legkorszerűbb hőszivattyús fűtés–hűtés rendszer, mennyezeti hűtéssel és padlófűtéssel. Komfort minden évszakban.
Zöld energia – Az épület saját napelem rendszerrel rendelkezik, így energiahatékony és fenntartható.
Exkluzív anyaghasználat – Luxus burkolatok, egyedileg tervezett bútorzat és prémium gépesítés gondoskodik a stílusos megjelenésről.
Lélegzetelállító kültér – A gondozott, parkosított kert automata öntözőrendszerrel felszerelt, a tágas teraszok és erkélyek pedig tökéletes helyszínei lehetnek naplementés vacsoráknak vagy reggeli kávézásoknak.
Műszaki paraméterek:
Alapterület: 286,77 m²
Terasz és erkélyek összesen: 73,04 m²
Telekméret: 753 m²
Parkolás: zárt udvarban (fedett beálló)
Levegőztetés: beépített légcserélő rendszer
Elhelyezkedés és környezet:
Balaton-part: kb. 80–100 méter – akár fürdőruhában is lesétálhat
Plázs, strand: kb. 300 méter
Siófok belvárosa, Víztorony, Sió Pláza: kb. 800 méter – üzletek, éttermek, kulturális események karnyújtásnyira
Bővebb információért, megtekintés egyeztetésért,
Kérem keressen a megadott elérhetőségeimen!
Update vip ingatlan iroda további szolgáltatásai:
Energetikai tanúsítvány készítés, díjmentes-bank semleges hitelügyintézés,
Ügyvédi háttér, közjegyző, földhivatali ügyintézés, építész, lakberendező.
Részletek
-
Ár 549 000 000 Ft
-
Alapterület 323 m²
-
Telekterület 753 m²
-
Szoba 9
-
Fürdőszoba 6
-
Garázs Telken belüli fedett beállón
-
Ingatlantípus Családi ház
-
Értékesítés típusa Eladó
Hitel Kalkulátor
-
Önrész
-
Kölcsön összege
-
Havi jelzáloghitel fizetés





















