SIÓFOK ARANYPART EGYIK LEGPATINÁSABB UTCÁJÁBAN, NÉHÁNY LÉPÉSRE A BALATONTÓL CSALÁDI HÁZ ELADÓ!
- 395 000 000 Ft
- 395 000 000 Ft
Leírás
UPDATE VIP INGATLAN IRODA KÍNÁLATÁBÓL: KIVÉTELES LEHETŐSÉG SIÓFOK ARANYPARTON!
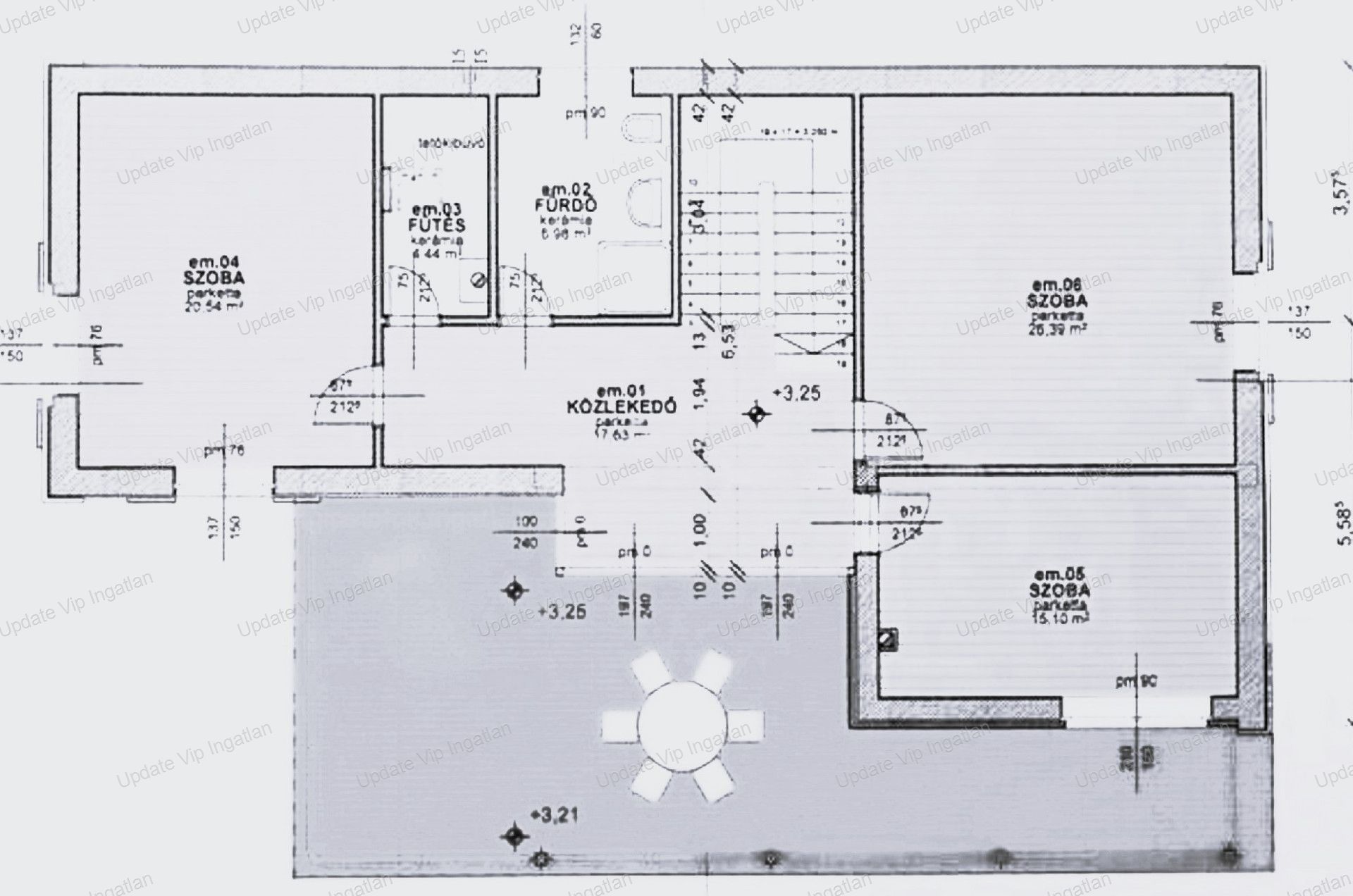
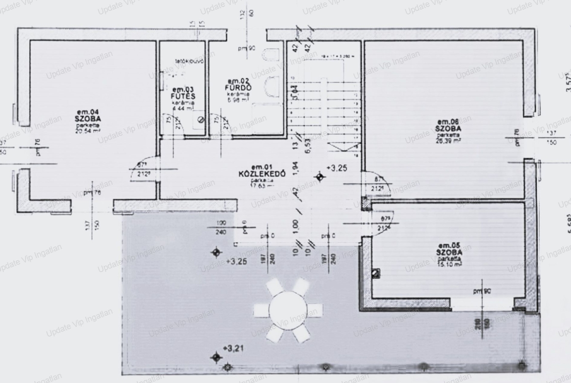
Az Update VIP Ingatlaniroda kínálatából most egy igazán különleges, 245 m²-es kétszintes ingatlan keresi új tulajdonosát, Siófok Aranypartjának egyik legpatinásabb utcájában! Pár lépésre a Balatontól, gondosan karbantartott, parkosított telken kínálja az exkluzivitás és a nyugalom ideális kombinációját.
Alkalmas lehet:
• Állandó lakhatásra
• Nyaralóként használatra
• Befektetésként pl szálláshely üzemeltetésre
Főbb paraméterek:
• Lakóterület: 245 m² / 2 szint
• Teraszok: összesen 60 m²
• Telek mérete: 568 m²
• Parkolás: zárt udvarban (fedett)
• Fűtés: gázcirkó rendszer
• Hűtés: klímaberendezés
• Kert: rendezett, rendszeresen karbantartott
Elhelyezkedés – minden perceken belül:
• Balaton, Plázs, strand: kb. 150 m
• Belváros – Fő tér, Víztorony, Sió Pláza, közintézmények: kb. 800 m
Mit kínál ez az ingatlan? Egy különleges életstílust. A Balaton közelsége, a nyugodt, exkluzív utcakép, a kiváló infrastruktúra és a prémium felszereltség garantálja, hogy akár saját otthonként, akár befektetésként az egyik legjobb döntés legyen Siófok szívében.
Bővebb információért, megtekintés egyeztetésért,
Kérem keressen a megadott elérhetőségeimen!
Update vip ingatlan iroda további szolgáltatásai:
Energetikai tanúsítvány készítés, díjmentes-bank semleges hitelügyintézés,
Ügyvédi háttér, közjegyző, földhivatali ügyintézés, építész, lakberendező.
Részletek
-
Ár 395 000 000 Ft
-
Alapterület 245 m²
-
Telekterület 568 m²
-
Szoba 6
-
Fürdőszoba 2
-
Garázs Telken belüli fedett beállón
-
Ingatlantípus Családi ház
-
Értékesítés típusa Eladó
Hitel Kalkulátor
-
Önrész
-
Kölcsön összege
-
Havi jelzáloghitel fizetés






















