Eladó új építésű luxus lakások !
- 130 000 000 Ft
- 130 000 000 Ft
Leírás
A balatoni Update Vip Ingatlaniroda kínálatából:
VESZPRÉMTŐL 5 perces autóútra található ez a luxus kivitelezésű ingatlan, teljes bútorzattal!
Eladó új építésű luxus lakások Nemesvámoson!
Álmodj a tökéletes otthonról, amely a kényelem, a minőség és a modern technológia ötvözésével vár rád! Ez az új építésű lakás egy prémium lakóparkban helyezkedik el, mindössze 5 km-re Veszprémtől, a csendes, zöld övezetben, amely tökéletes választás azok számára, akik a nyugalmat és a természet közelségét keresik, de mégis könnyen elérhetik a város nyújtotta lehetőségeket.
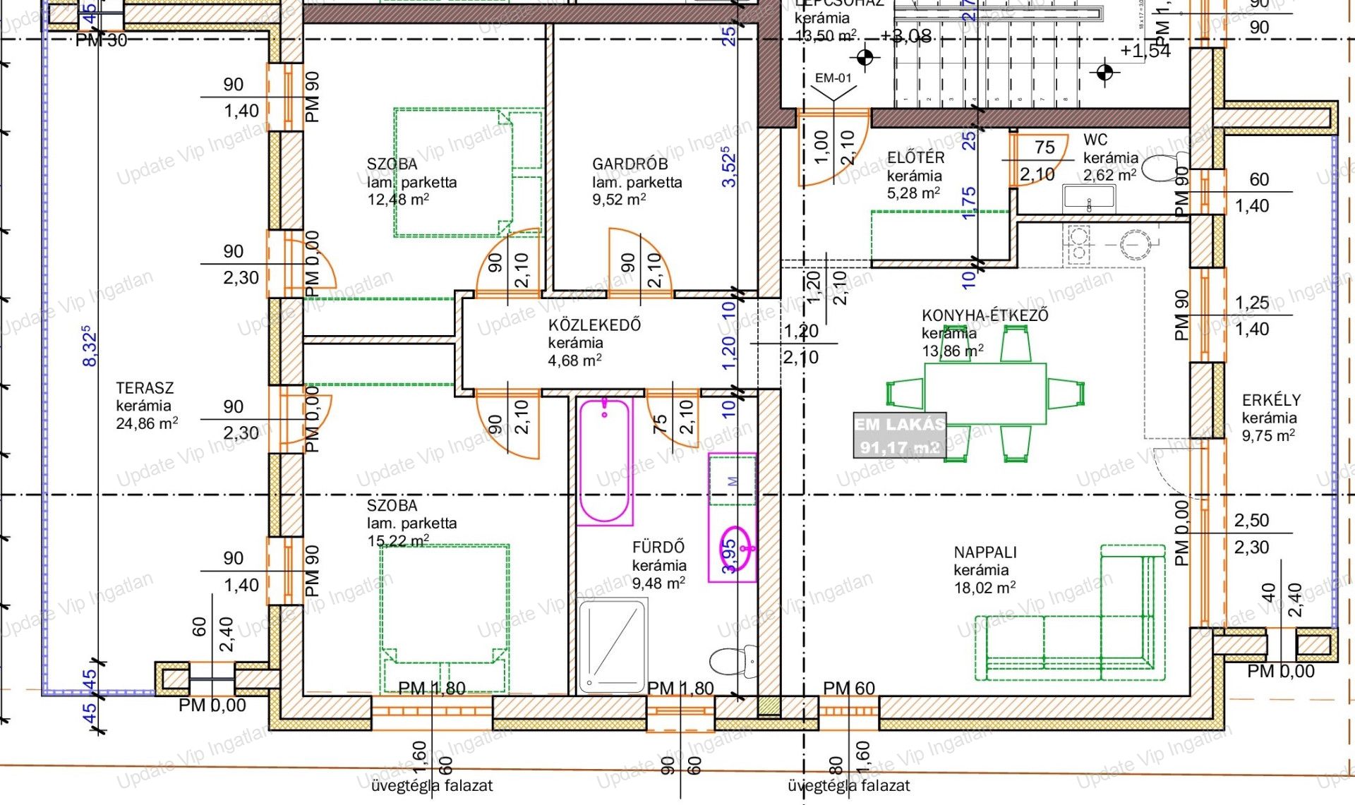
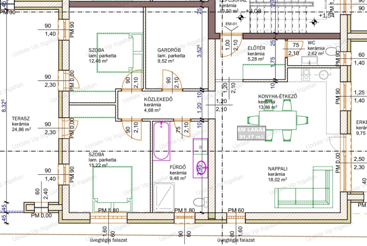
Az első emeleti lakás jellemzői:
Térbeli kényelem és luxus: A 3 szobás lakás tágas terekkel, külön gardrób helyiséggel rendelkezik. Beépített bútorokkal, gépekkel!
Energiahatékonyság: A padlófűtés Panasonic hőszivattyúval biztosítja az optimális hőmérsékletet a lakásban, míg a SPECTRUM típusú 3 rétegű nyílászárók a hőszigetelést és hangszigetelést is magas szinten garantálják.
Kiváló minőségű anyagok: A BRAMAC tetőcserép és a 15 cm-es homlokzati szigetelés segíti a lakás fenntarthatóságát és alacsony energiafogyasztását.
Prémium belső terek: Fehér színű lécvázas álmennyezet és egyéb stílusos részletek teszik még hangulatosabbá az otthont.
A lakás tropikus növényekkel és pálmafákkal övezett udvarral rendelkezik, melyek a parkoló és a bevezető út mentén díszítik a környezetet. Minden lakáshoz saját pálmafák kerültek elhelyezésre az erkélyen, melyek az ingatlan vételárát tartalmazzák.
Az udvarban egy komplett időzített locsolórendszer segíti a növények egészséges növekedését. Patakmeder eltolása révén egy nagyobb zöldterület jött létre, amely ideális pihenésre, vagy akár kerti rendezvényekhez is.
Kiváló közlekedés és infrastruktúra:
A lakás csupán 5 percre található Veszprémtől, autóval könnyen elérhető számos bevásárlási lehetőség.
A környéken buszmegálló, óvoda, és Waldorf iskola is rendelkezésre állnak, így minden kényelmi szolgáltatás könnyen elérhető.
A társasházban összesen 6 lakás található, mindegyik magas műszaki színvonalon, prémium kivitelezéssel.
A bejáratnál elektromos kapu és kaputelefon biztosítja a biztonságos belépést.
Minden lakáshoz 2 parkolóhelyet és egy tárolót biztosítanak.
Ne hagyja ki ezt a páratlan lehetőséget, hogy egy prémium, környezetbarát otthon birtokosa legyen Nemesvámos egyik legszebb környezetében!
Bővebb információért, megtekintés egyeztetésért, kérem keressen a megadott elérhetőségeimen!
UPDATE VIP INGATLAN IRODA további szolgáltatásai:
Energetikai tanúsítvány készítés, Díjmentes-bank semleges hitelügyintézés,
Ügyvédi háttér, Közjegyző, Földhivatali ügyintézés, Építész, Lakberendező.
Részletek
-
Ár 130 000 000 Ft
-
Alapterület 91 m²
-
Szoba 4
-
Fürdőszoba 1
-
Garázs Telken belül nem fedett beállón
-
Ingatlantípus Lakás
-
Értékesítés típusa Eladó
-
Emelet 1
Hitel Kalkulátor
-
Önrész
-
Kölcsön összege
-
Havi jelzáloghitel fizetés





















