Eladó új építésű kertkapcsolatos lakások Ajkán!
- 80 000 000 Ft
- 80 000 000 Ft
Leírás
Az Update Vip Ingatlaniroda kínálatából:
Ajka-Bakonygyepes városrészén található újépítésű sorházak!
Eladó új építésű kertkapcsolatos lakások Ajkán! Várható átadás 2025. év III. negyedév!
Álmodj a tökéletes otthonról, amely a kényelem, a minőség és a modern technológia ötvözésével vár rád! Ez az új építésű lakás egy sorházas lakóparkban helyezkedik el, a csendes, zöld övezetben, amely tökéletes választás azok számára, akik a nyugalmat és a természet közelségét keresik, de mégis könnyen elérhetik a város nyújtotta lehetőségeket.
A lakások jellemzői:
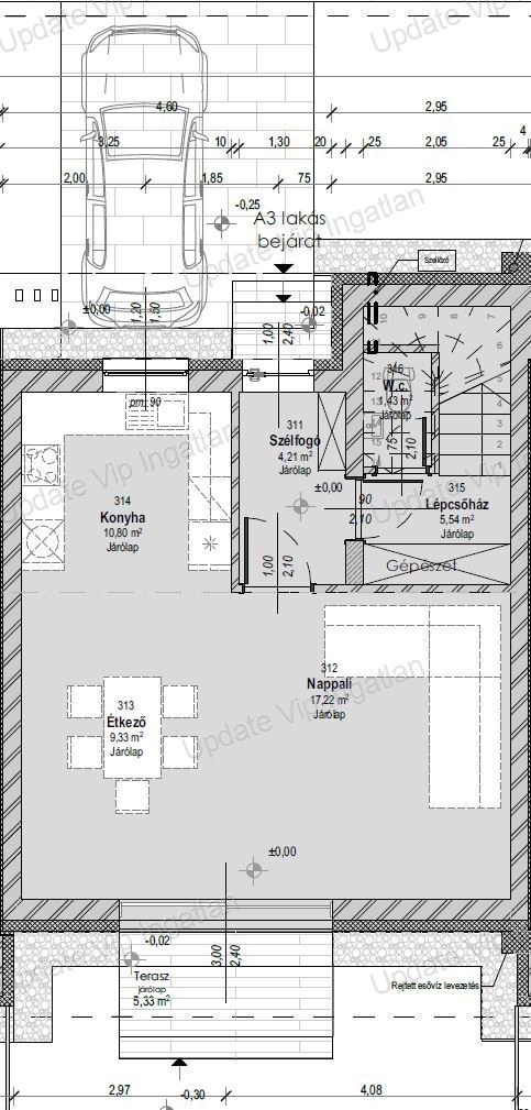
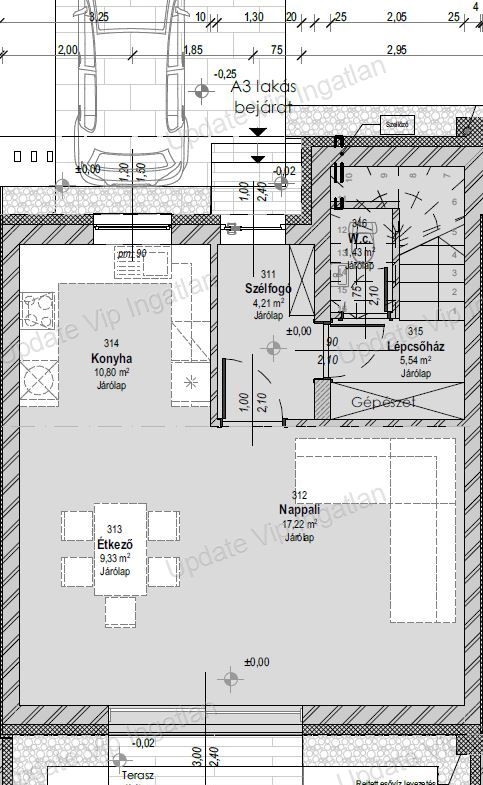
Térbeli kényelem és luxus: A 3 szobás, kétszintes lakás tágas terekkel és nagy méretű nappalival rendelkezik.
Energiahatékonyság: A padlófűtés minőségi hőszivattyúval biztosítja az optimális hőmérsékletet a lakásban, míg a műanyag nyílászárók a hőszigetelést és hangszigetelést is magas szinten garantálják.
Kiváló minőségű anyagok: A szigetelt lapostető és a 15 cm-es homlokzati szigetelés segíti a lakás fenntarthatóságát és alacsony energiafogyasztását.
Kiváló közlekedés és infrastruktúra:
A sorházi lakások csupán néhány percre találhatók Ajkától, autóval könnyen elérhető számos bevásárlási lehetőség.
A társasházban összesen 4 lakás található, mindegyik magas műszaki színvonalon, minőségi kivitelezéssel kerül átadásra.
Felszíni parkoló a sorház udvarán található, a telkek kerítéssel körbekerítettek.
Ne hagyja ki ezt a páratlan lehetőséget, hogy egy kiváló minőségű, környezetbarát otthon birtokosa legyen!
Bővebb információért, megtekintés egyeztetésért, kérem keressen a megadott elérhetőségeimen!
UPDATE VIP INGATLAN IRODA további szolgáltatásai:
Energetikai tanúsítvány készítés, Díjmentes-bank semleges hitelügyintézés,
Ügyvédi háttér, Közjegyző, Földhivatali ügyintézés, Építész, Lakberendező.
Részletek
-
Ár 80 000 000 Ft
-
Alapterület 98 m²
-
Telekterület 120 m²
-
Szoba 3
-
Fürdőszoba 1
-
Ingatlantípus Lakás
-
Értékesítés típusa Eladó
-
Emelet Földszint
Jellemzők
Hitel Kalkulátor
-
Önrész
-
Kölcsön összege
-
Havi jelzáloghitel fizetés

























